Realizacje/projekty
Projekt budowy budynku mieszkalnego partnerowego.
Zobacz projekt
Zobacz projekt
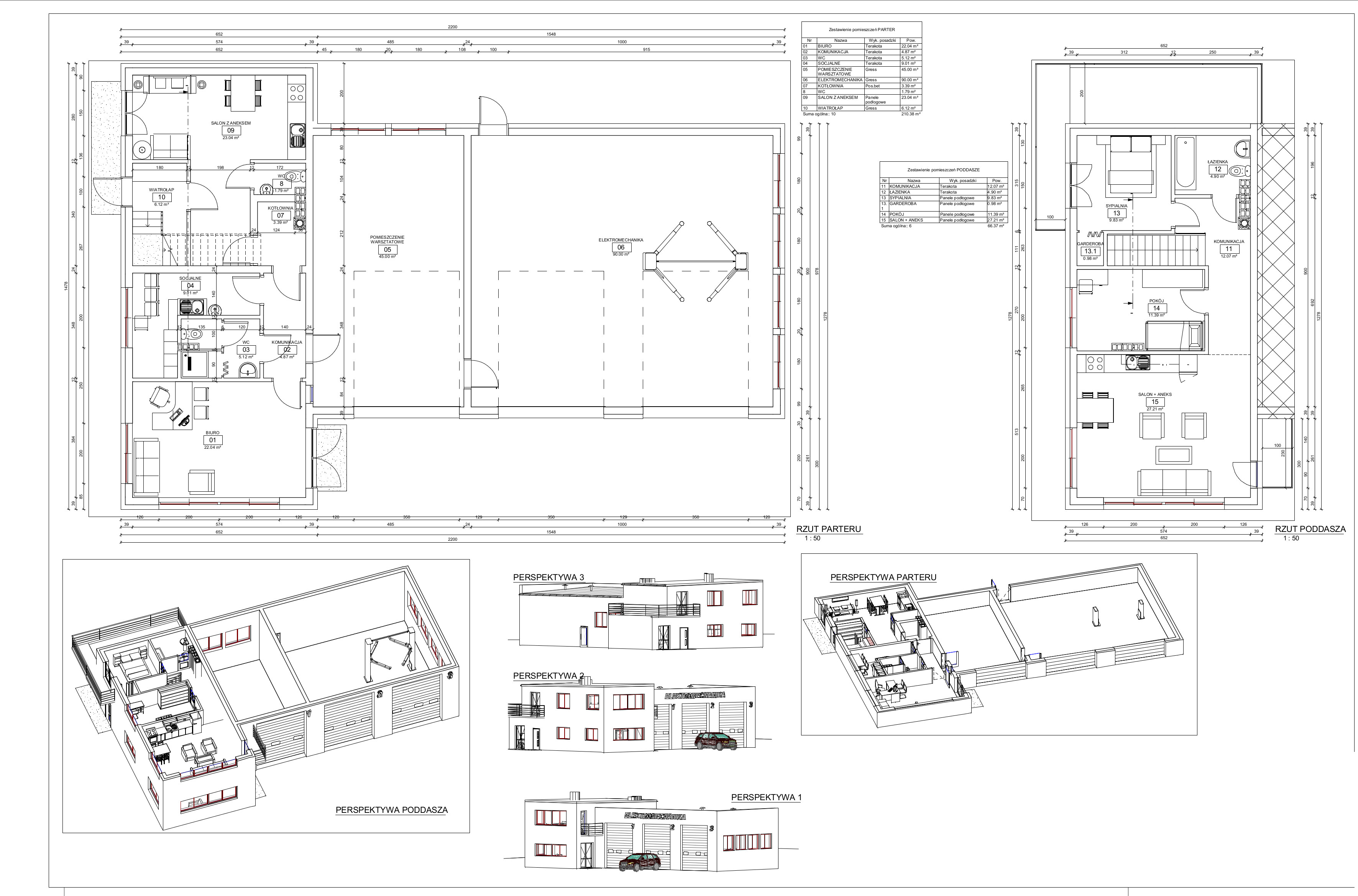
Projekt budowy budynku mieszkalnego z garażem.
Zobacz projekt
Zobacz projekt
Projekt budowy budynku mieszkalnego z poddaszem i garażem w bryle budynku.
Zobacz projekt
Zobacz projekt
Projekt budowy budynku mieszkalnego zrealizowany w technologii szkieletowej
Zobacz projekt
Zobacz projekt
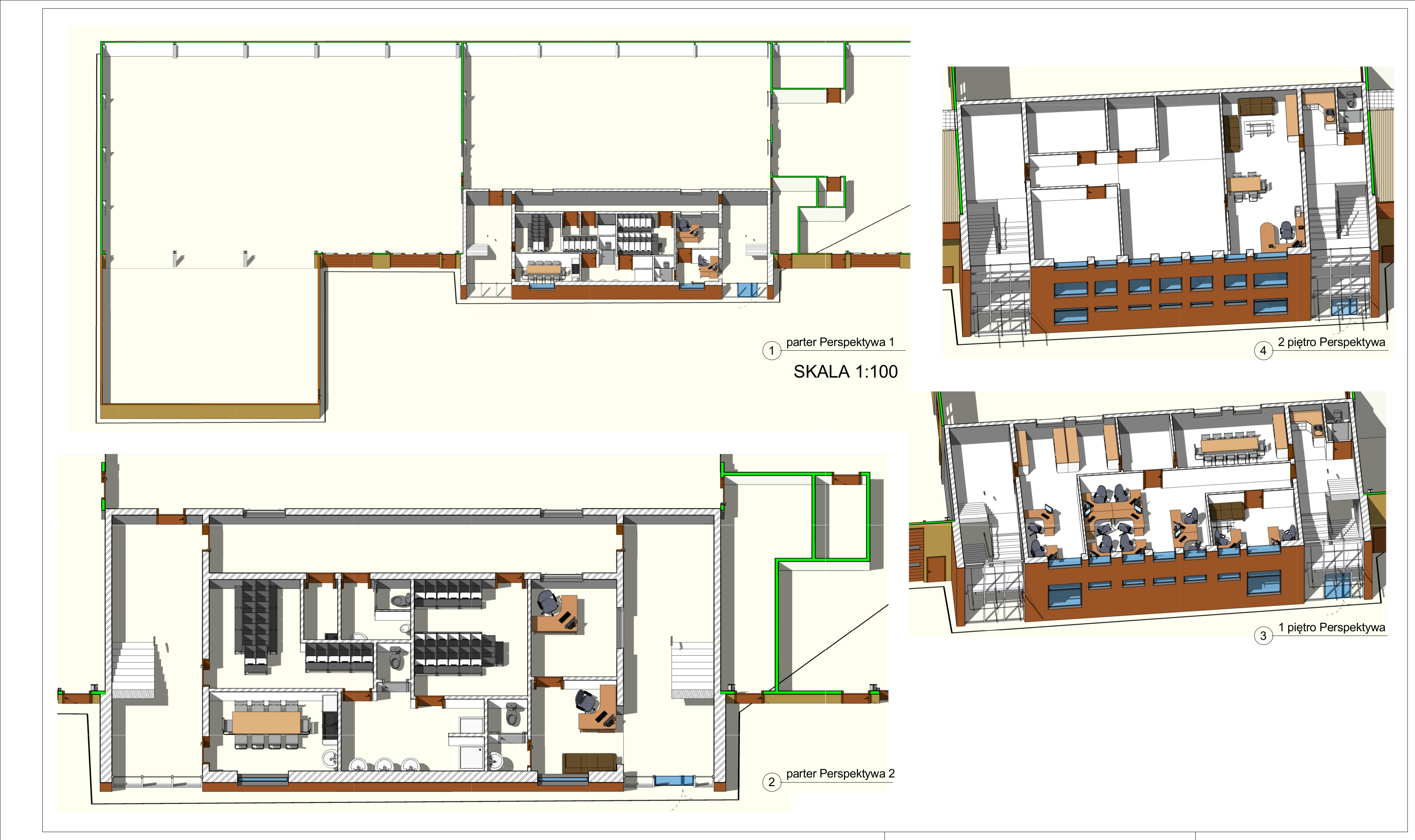
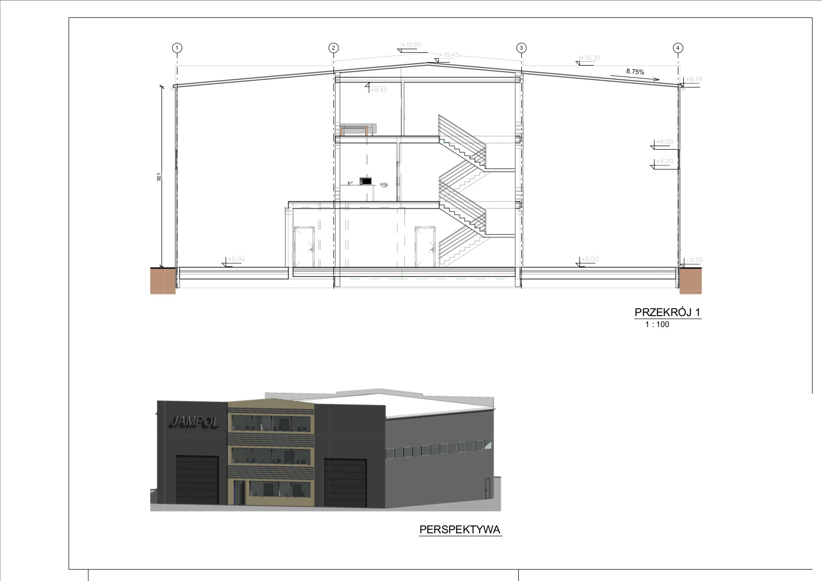
Projekt budowy hali magazynowej wraz z rozbudową biurowca.
Zobacz projekt
Zobacz projekt
Koncepcja budowy budynku mieszkalnego z częścią usługową.
Zobacz projekt
Zobacz projekt
Rozbudowa budynku mieszkalnego.
Zobacz projekt
Zobacz projekt
Rozbudowa budynku mieszkalnego ze zmianą dachu.
Zobacz projekt
Zobacz projekt
Rozbudowa z nadbudową budynku mieszkalnego.
Zobacz projekt
Zobacz projekt
